ÚTBOÐ
07.04.2026 Rangárþing eystra. „Skógar 2026 Rútustæði“
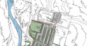
Rangárþing eystra óskar eftir tilboðum í : „Skógar 2026 Rútustæði“
Verkið felur í sér gerð á bílastæðum með malbiki og hellulögnum.
Helstu magntölur eru:
Malbik: 5340 ...















































