Fresta gjalddaga í fimmta sinn á gatnagerðargjölum
Reykjaneshöfn og Thorsil ehf. hafa í dag gert með sér samkomulag um að fyrsti gjalddagi gatnagerðargjalda á grundvelli Lóðar- og hafnarsamningsins færist aftur til 15....
Miklar framkvæmdir hjá Garðabæ á árinu 2015
Umfangsmiklar framkvæmdir voru í Garðabæ á árinu 2015 en alls var framkvæmt fyrir 1,6 milljarð. 662 milljónum var varið til framkvæmda við fasteignir grunnskóla, þar...
BSRB skoðar aðkomu að íbúðafélagi
Stjórn BSRB hefur nú til skoðunar hvort bandalagið mun koma að stofnun íbúðafélags ásamt Alþýðusambandi Íslands (ASÍ). Félagið mun verða leigufélag sem rekið verður...
Fyrsta sprenging í munna Húsavíkurganga í síðustu viku
Fyrsta sprenging í munna Húsavíkurganga var sprengd fimmtudaginn 10. mars þegar tveir stuttir salvar voru sprengdir.
Í lok viku 10 er lengd ganga þar með...
05.04.2016 Gras- og kantsláttur Suðursvæðis 2016-2017
14.3.2016
Vegagerðin óskar eftir tilboðum í gras- og kantslátt á Suðursvæði 2016 – 2017.
Helstu magntölur á ári eru:
Grassláttur 1.594.710...
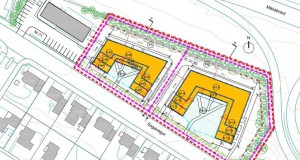
Vilja tvö fjölbýlishús við Sogaveg
Í vikunni var ákveðið á fundi umhverfis- og skipulagsráðs Reykjavíkur að að kynna fyrir hagsmunaaðilum hugmyndir THG Arkitekta um að rífa tvö hús við...
Í Garðabæ eru nú um 670 íbúðir í undirbúningi
Í Garðabæ eru nú um 670 íbúðir ýmist í uppbyggingu eða er áformað að hefja uppbyggingu við á þessu ári.
Langflestar íbúðirnar eru í Urriðaholti. Þar eru...













