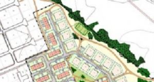
Nýjar lóðir til úthlutunar í Þorlákshöfn
Sveitarfélagið Ölfus hefur auglýst nýjar raðhúsalóðir lausar til úthlutunar í nýju hverfi sem kallast Norðurhraun.
Hverfið er samofið Sambyggð, Norðurbyggð og Básahrauni. Það mótar skemmtilega...
Vígsla viðbyggingar við Íþróttamiðstöð Húnaþings vestra
Viðbyggingin við Íþróttamiðstöð Húnaþings vestra á Hvammstanga var vígð á þriðjudaginn. Með tilkomu hennar er aðstaða í Íþróttamiðstöðinni orðin hin besta og þjónusta við...
Opnun nýrrar móttökustöðvar Sorpu tefst
Vegna tafa við fjármögnun tækjabúnaðar í móttökustöð nýrrar gas-og jarðgerðarstöðvar Sorpu verður ekki hægt að taka stöðina í notkun fyrr en í apríl eða...
Hífa 16 metra langar pípur sem vega 2,9 tonn í Árbæ
Framkvæmdir við Árbæjaræð standa yfir þessa dagana og sér Verkís um framkvæmdaeftirlit fyrir hönd Veitna.
Nýlega hófst verktaki handa við að hífa 16 metra langar...
Ofanflóðavarnir fyrir 1,3 milljarða
Framkvæmdir við ofanflóðavarnir á Patreksfirði kosta 1,3 milljarða króna.
Það er lægsta tilboðið sem barst í verkið og er hundrað milljónum hærra en áætlað var....
Stjórnendur virtu að vettugi kostnaðarmat verkfræðistofu
Framkvæmdastjóri Ferils verkfræðistofu segir að kostnaðaráætlun sem fyrirtækið vann fyrir Upphaf fasteignafélag vegna verkefnis á Kársnesi standist og sé í takt við framvindu verksins....
Vilja byggja fimm 6-11 hæða fjölbýlishús á Oddeyrinni á Akureyri
Bæjarstjórn Akureyrar samþykkti skipulagslýsingu á þriðjudaginn sem er fyrsti liðurinn í því að breyta gildandi aðalskipulagi Akureyrarbæjar svo verktakafyrirtæki verði heimilt að byggja allt...
Framkvæmdasýslan semur við Ara Oddsson ehf. vegna HVE Akranesi, Sjúkrabílskýli og...
Tilboð voru opnuð 28. ágúst 2019.
Eftirfarandi tilboð bárust:
Nr. Bjóðandi ...
Verktakar hafa sagt upp fólki vegna Upphafs verktakafyrirtækis
Verktakar sem starfað hafa fyrir Upphaf, verktakafyrirtækis í eigu sjóðs Gamma, hafa þurft að segja upp starfsfólki sem rekja má til fjárhagsvandræða Upphafs.
Þetta herma...














