Móahverfi er nýtt íbúðahverfi í norðvesturhluta Akureyrar þar sem gert er ráð fyrir að byggðar verði allt að 1.100 íbúðir á næstu árum en þegar hefur verið úthlutað lóðum fyrir um 450 íbúðir í fjölbýlis-, rað-, par- og einbýlishúsum.
Akureyrarbær auglýsir nú eftir kauptilboðum í byggingarrétt fimm lóða í 2. áfanga hverfisins en þar af er ein lóð þar sem úthlutun mun byggja á uppbyggingu íbúða á grundvelli stofnframlaga sbr. lög nr. 52/2016. Um er að ræða fjölbýlishúsalóðir og því geta einungis lögaðilar boðið í lóðirnar. Stefnt er að því að lóðirnar verði byggingarhæfar í júlí 2026 en afhending gæti orðið bæði fyrr eða síðar.
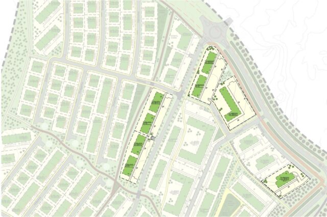
Yfirlitsmynd af auglýstum lóðum
Tilboðum í lóðir skal skila rafrænt hér í gegnum útboðsvef Akureyrarbæjar fyrir kl. 12:00 mánudaginn 23. mars 2026. Gæta skal þess að tilboð lögaðila sé staðfest af aðila sem hefur heimild til að skuldbinda félagið.
Hér má nálgast leiðbeiningar um hvernig skila megi inn rafrænu tilboði/umsókn.
Eftirfarandi eru lóðir þar sem skila þarf inn tilboði í byggingarrétt.

Eftirfarandi er lóð þar sem forsenda úthlutunar er að uppbygging byggi á stofnframlögum. Með því að velja hlekk lóðar má nálgast útboðsgögn og í framhaldinu skila inn tilboði.

*Byggingarréttargjald hækkar eða lækkar 1. hvers mánaðar samkvæmt byggingarvísitölu.












