Einbýlis-, parhúsa- og raðhúsalóðir eru nú í boði í öðrum áfanga lóðaúthlutunar í Áslandi 4. Uppbygging á þessu nýjasta uppbyggingarsvæði í Hafnarfirði er þegar hafin.
Ásland 4 er nýjasta uppbyggingarsvæðið í Hafnarfirði og uppbygging þegar hafin. Nú hefur nýjum lóðum verið bætt við og annar áfangi uppbyggingar hafinn.
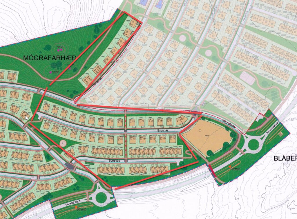
Hafnarfjarðarbær hefur opnað fyrir umsóknir um 33 einbýlishúsalóðir, 6 raðhúsalóðir og 5 parhúsalóðir með í heild 75 íbúðum. Loftlínur milli Hamranesvirkis og Kaldárselsvegar eru komnar í jarðstreng og búið að fjarlægja möstur og loftlínu, að undanskildu mastri næst Hamranesi.
- 33 einbýlishús
- 6 raðhús, samtals 36 íbúðir
- 5 parhús

33 lóðir fyrir einbýli, 6 lóðir fyrir raðhús og 5 fyrir parhús
Í þessum öðrum hluta úthlutunar uppbyggingar í Ásandi 4 eru lausar til úthlutunar 33 lóðir fyrir einbýli og 6 raðhúsalóðir og 5 parhúsalóðir. Samtals 75 íbúðir. Lóðarverð endurspeglar lágmarks byggingarmagn á lóð. Sjá má verð og stærð á kortavefnum.
Heimild: Hafnarfjordur.is












