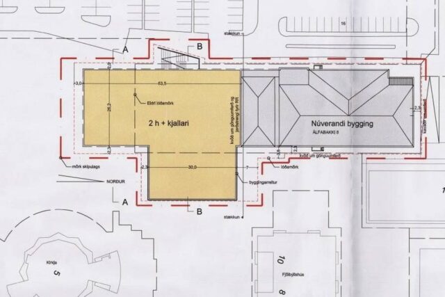
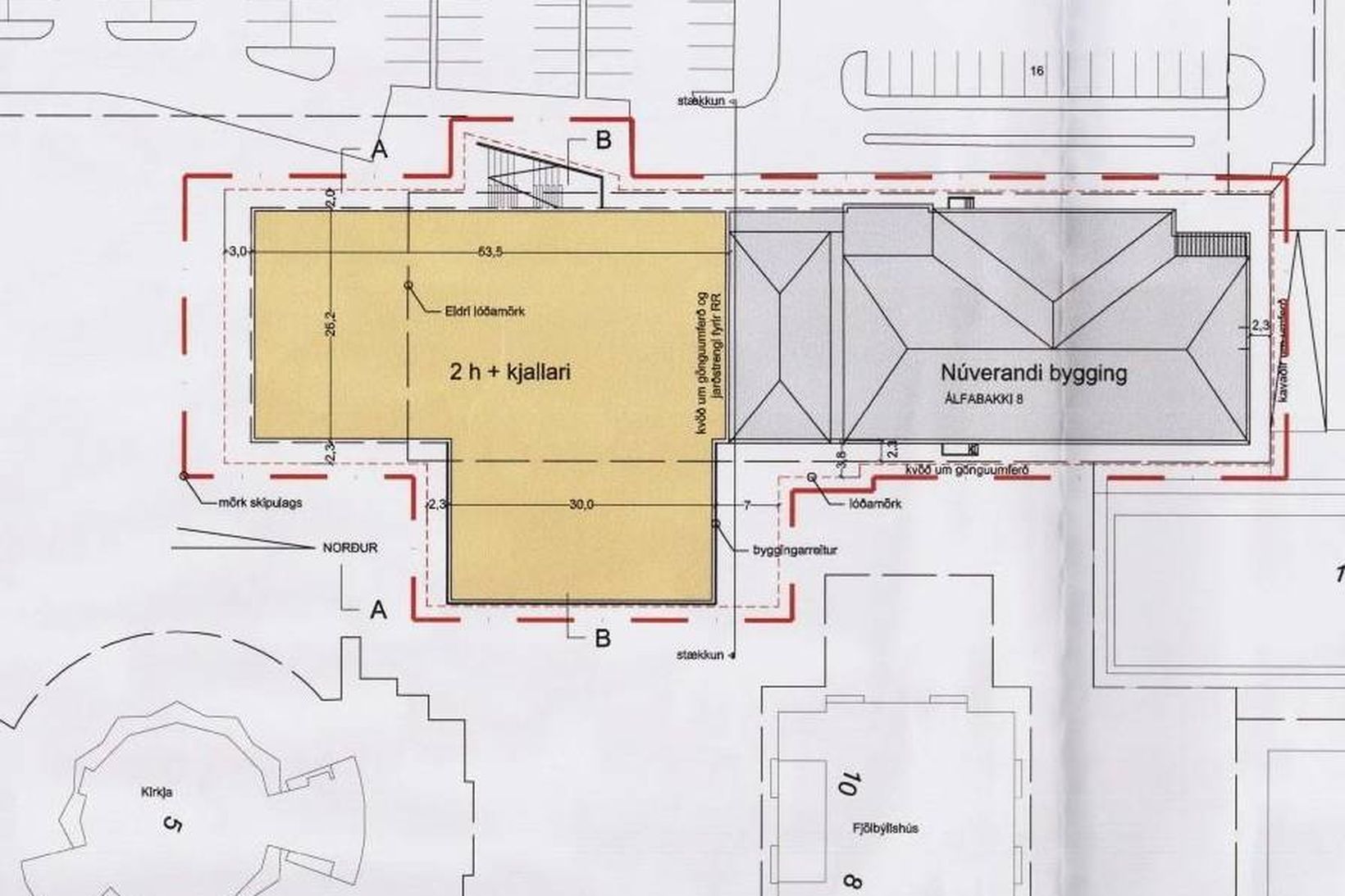
Borgarráð hefur samþykkt stækkun á bíólóðinni að Álfabakka 8 og greiðir lóðarhafi 65 milljónir fyrir lóðina. Lóðarhafa er gert að greiða 6.000 krónur fyrir 3.253 fermetra byggingarrétt eða alls 19,5 milljónir. Áætlað byggingarmagn á lóðinni er 10.000 fermetrar.
Borgarráðsfulltrúar Sjálfstæðisflokksins og Framsóknarflokksins sátu hjá við afgreiðslu málsins og bókuðu sjálfstæðismenn að ekkert lægi fyrir um hvað fyrirhuguð uppbygging fæli í sér og hvaða áhrif hún myndi hafa á ásýnd og starfsemi í Mjóddinni.
Samkvæmt deiliskipulagstillögunni er gert ráð fyrir því að bíóhúsið lengist um 53,5 metra og verður heildarlengd hússins þá 120 metrar. Verslunarhús Nettó í Mjódd er 112 metrar og vöruhúsið og kjötvinnslan við Álfabakka 8a er 215 metrar.
Heimild: Mbl.is












